Với gia chủ xây nhà lần đầu, việc ngôi nhà vận hành hiệu quả quan trọng không kém hình thức bên ngoài. Nếu thiết kế kiến trúc quyết định tính thẩm mỹ, thì thiết kế điện nước chính là yếu tố đảm bảo sinh hoạt an toàn, tiện nghi và ổn định lâu dài. Bài viết này sẽ giúp bạn hiểu vì sao thiết kế điện nước đồng bộ ngay từ đầu là khoản đầu tư thông minh để bảo vệ tổ ấm bền vững với thời gian.
Thiết kế điện nước là gì ? Vì sao gia chủ thường xem nhẹ ?
Thiết kế điện nước là việc lập bản vẽ tổng thể cho cách ngôi nhà vận hành mỗi ngày: từ điện chiếu sáng, ổ cắm, cấp thoát nước đến thông gió, điều hòa và các hệ thống kỹ thuật liên quan.
Đây là quá trình tính toán và lập bản vẽ kỹ thuật chi tiết cho toàn bộ hệ thống mạng lưới năng lượng điện, nước, thoát nước, thông gió, điều hòa không khí và các hệ thống kỹ thuật. Sự khác biệt giữa việc làm theo kinh nghiệm của thợ nhỏ lẻ và có bản vẽ kỹ thuật từ đội ngũ bài bản là một khoảng cách rất lớn về đẳng cấp và độ an toàn:
- Vẽ sơ đồ cơ bản : Thợ thi công thường chỉ lắp đặt để “bật đèn là sáng, vặn vòi là có nước”. Các vị trí ổ cắm, đường ống được áng chừng tại hiện trường.
- Thiết kế kỹ thuật bài bản: Các kỹ sư cần phải tính toán chi tiết tổng công suất tải, dòng điện để chọn tiết diện dây dẫn và Aptomat bảo vệ. Hệ thống nước được tính toán áp lực tại điểm xa nhất, đảm bảo vòi sen tầng cao nhất vẫn mạnh như tầng trệt.
Sai lầm của đa số gia chủ là tư duy “xây đến đâu tính đến đó”. Với các công trình hiện đại như biệt thự, villa tích hợp công nghệ Smarthome, việc thiếu một bản vẽ thiết kế điện nước đồng bộ ngay từ đầu sẽ biến quá trình vận hành sau này thành một chuỗi những hỏng hóc tốn kém.

Hậu quả khôn lường khi thiết kế điện nước không đồng bộ
Khi hệ thống điện nước không được tính toán đồng bộ với kết cấu và kiến trúc, các vấn đề phát sinh thường không xuất hiện ngay, mà bộc lộ dần trong quá trình sử dụng. Lúc này, chi phí sửa chữa không chỉ tốn kém mà còn ảnh hưởng trực tiếp đến độ an toàn và trải nghiệm sống của gia chủ.
Đục phá, sửa chữa sau hoàn thiện
Đây là rủi ro lớn nhất. Nếu không có thiết kế điện nước đồng bộ, đội thợ xây thường đổ bê tông dầm, sàn xong mới nhận ra vị trí hộp kỹ thuật bị vướng kết cấu. Lúc này, thợ buộc phải đục phá bê tông để đặt ống.
Việc đục phá này làm suy giảm khả năng chịu lực của cấu kiện và tạo ra các vết nứt tiềm ẩn gây thấm dột. Đặc biệt, nếu sau này xảy ra sự cố rò rỉ âm tường mà không có bản vẽ hoàn công, bạn sẽ phải “mò kim đáy bể”, khoan nát những mảng tường trang trí đắt tiền chỉ để tìm một mối nối ống bị hở.
Thiết kế điện nước chồng chéo, xung đột kết cấu
Một đội ngũ chuyên nghiệp, giàu kinh nghiệm như BP House sẽ không bao giờ để ống thoát nước D110 (thoát bồn cầu) đi xuyên qua dầm chính của ngôi nhà.
Tuy nhiên, nếu thiếu bản vẽ phối hợp, tình trạng ống cấp nước đè lên đường dây điện, hoặc ống thoát nước làm vướng lối đi của ống thông gió là chuyện thường ngày. Sự chồng chéo này không chỉ gây khó khăn cho việc bảo trì mà còn làm hẹp không gian trần thạch cao, khiến căn phòng trở nên thấp và bí bách.
Xem thêm: QUY TRÌNH TƯ VẤN THIẾT KẾ THI CÔNG TRỌN GÓI TẠI BP HOUSE
Thiết bị bố trí sai công năng và thói quen sử dụng
Sự thiếu đồng bộ giữa thiết kế điện nước và nội thất dẫn đến những tình huống trớ trêu: máy lạnh thổi trực tiếp vào đầu giường ngủ gây viêm xoang cho gia chủ, hoặc ổ cắm bếp lại nằm quá gần bồn rửa, tiềm ẩn nguy cơ phóng điện.
Khi thói quen sinh hoạt của gia chủ không được kiến trúc sư đo đạc, tính toán kỹ lưỡng theo nhân trắc học (chiều cao, tầm tay với), ngôi nhà cho dù có là triệu đô cũng sẽ mang lại những bất tiện với các thành viên trong gia đình.
Không đảm bảo an toàn, thấm nước, quá tải điện – rủi ro lâu dài
Hệ thống điện nước làm rời rạc, thiếu tính toán tổng thể dễ phát sinh các sự cố nguy hiểm như: rò rỉ điện do đi chung rãnh với ống nước, quá tải mạch điện, hay thấm nước âm sàn, âm tường kéo dài.
Những rủi ro này không chỉ làm giảm tuổi thọ công trình, mà còn ảnh hưởng trực tiếp đến sự an toàn và giá trị tài sản của gia chủ trong suốt quá trình sử dụng.
Mối liên hệ mật thiết giữa Điện nước – Kiến trúc – Nội thất
Trong quá trình xây dựng một ngôi nhà hoàn chỉnh, điện nước là yếu tố kỹ thuật không thể tách rời kiến trúc và nội thất. Với mô hình xây nhà trọn gói – chìa khóa trao tay, BP House luôn đặt yếu tố phối hợp liên ngành lên hàng đầu, đảm bảo ngôi nhà không chỉ đẹp khi bàn giao mà còn vận hành ổn định suốt nhiều năm sử dụng.
Đồng bộ với Kết cấu và Kiến trúc
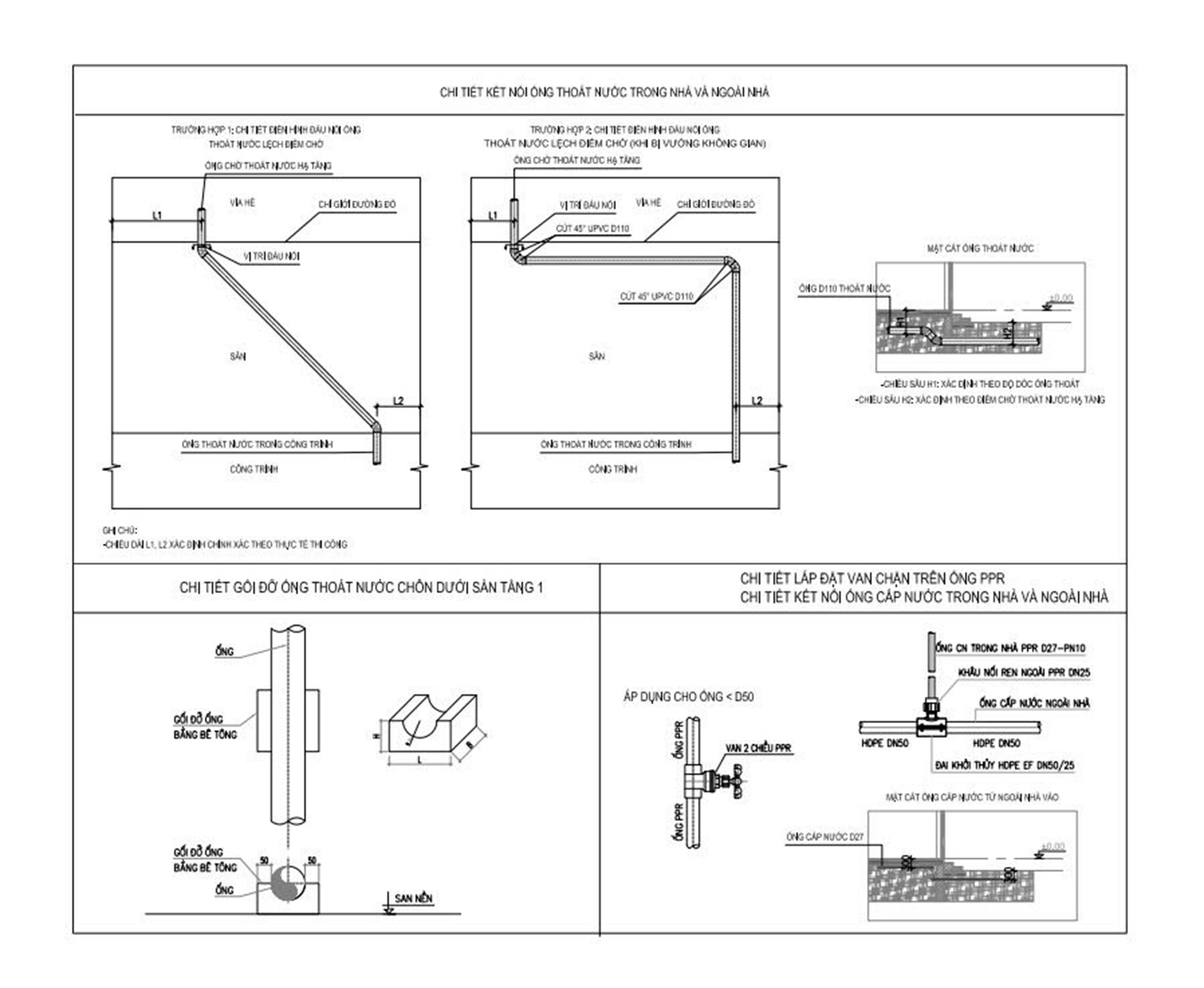
Vị trí dầm, cột ảnh hưởng trực tiếp đến độ dốc của ống thoát nước. Theo tiêu chuẩn kỹ thuật, ống thoát nước nằm ngang phải có độ dốc tối thiểu từ 2% đến 3% để đảm bảo rác thải và nước chảy tự nhiên, tránh ứ đọng gây mùi hôi.
Nếu không đồng bộ, khi thợ xây trát xong mới phát hiện độ dốc không đủ, việc sửa chữa gần như là không thể nếu không nâng cao sàn nhà vệ sinh, làm mất thẩm mỹ toàn diện.===

Đồng bộ với nội thất và thói quen sinh hoạt
Điện nước không chỉ là kỹ thuật, mà còn gắn chặt với trải nghiệm sử dụng hằng ngày. Chiều cao ổ cắm, công tắc, vị trí cấp – thoát nước cần được xác định dựa trên bản vẽ nội thất và thói quen sinh hoạt thực tế của gia chủ, ví dụ:
- Phòng ngủ: Ổ cắm và công tắc đảo chiều phải đặt ở độ cao 0.6m – 0.7m so với sàn để vừa tầm tay khi gia chủ nằm trên giường.
- Phòng bếp: Vị trí ổ cắm cho tủ lạnh, máy hút mùi, lò vi sóng phải được giấu kín sau tủ nhưng vẫn dễ dàng tiếp cận để ngắt điện khi cần thiết.
- Nhà vệ sinh: Vị trí vòi sen, lavabo cần được tính toán sao cho ống thoát không đụng vào thép dầm.
Một thiết kế bài bản sẽ đảm bảo mọi thiết bị đều nằm đúng tầm với, đúng công năng và an toàn khi sử dụng. Ngược lại, nếu làm rời rạc, gia chủ rất dễ gặp các tình huống bất tiện như ổ cắm bị che khuất bởi tủ, thiết bị đặt sai vị trí hoặc khó thao tác trong sinh hoạt hằng ngày.
Dự phòng công nghệ cho tương lai
Một ngôi nhà hiện đại không chỉ đáp ứng nhu cầu hiện tại mà còn cần sẵn sàng cho việc nâng cấp trong tương lai. Thiết kế điện nước thông minh luôn có phương án dự phòng cho các hệ thống có thể lắp đặt về sau như trạm sạc xe điện, pin năng lượng mặt trời, hệ thống lọc nước hay các thiết bị smarthome mở rộng.
Việc bố trí sẵn ống chờ và đường kỹ thuật ngay từ đầu giúp quá trình nâng cấp sau này diễn ra nhẹ nhàng, không cần đục phá, không ảnh hưởng đến kết cấu hay hoàn thiện nội thất.
Lợi ích dài hạn của hệ thống điện nước được đầu tư bài bản
Việc sở hữu một hồ sơ thiết kế điện nước chỉnh chu mang lại giá trị thực tế cho gia chủ:
- An tâm tuyệt đối: Hệ thống vận hành trơn tru trong 20-30 năm, không lo nước yếu hay điện chập chờn.
- Tối ưu thẩm mỹ: Không có dây điện chạy nổi, không có ống nước lộ thiên. Mọi chi tiết kỹ thuật đều ẩn mình tinh tế khi được hoàn thiện.
- Tiết kiệm chi phí vận hành: Việc tính toán đúng tiết diện dây giúp giảm hao phí điện năng do tỏa nhiệt tiết kiệm chi phí vận hành vê sau cho chủ đầu tư. Ngoài ra khi được thiết kế điện nước đồng bộ, hợp lý sẽ giúp giúp tiết kiệm nước và điện cho máy bơm.
- Bảo trì dễ dàng: Với bản vẽ hoàn công, bất kỳ thợ kỹ thuật nào cũng có thể đọc hiểu và sửa chữa nhanh chóng, đúng vị trí khi có sự cố.
Có thể nói việc đầu tư vào thiết kế điện nước đồng bộ giống như mua bảo hiểm cho ngôi nhà: chi phí ban đầu cao hơn một chút, nhưng lợi ích kéo dài hàng chục năm.

Cẩm nang thiết kế điện nước dành cho gia chủ
Để không trở thành nạn nhân của những đơn vị kém chất lượng, gia chủ cần yêu cầu bộ hồ sơ thiết kế điện nước phải đầy đủ các thành phần sau:
Hồ sơ phần Điện
- Sơ đồ nguyên lý: Cách nguồn điện đi từ tủ tổng đến các tủ tầng và thiết bị đầu cuối.
- Mặt bằng ổ cắm & chiếu sáng: Vị trí chính xác đến từng milimet.
- Sơ đồ điện nhẹ: Cáp Internet (Cat6), Camera an ninh, hệ thống âm thanh đa vùng.
- Bản vẽ chống sét & Tiếp địa: Chi tiết đóng cọc đồng và đi dây thoát sét.
- Mã màu dây chuẩn: Pha (Đỏ/Xanh), Trung tính (Đen), Tiếp địa (Vàng xanh). Điều này giúp gia chủ dễ dàng giám sát xem thợ có đi dây “lộn xộn” hay không.

Hồ sơ phần Nước
- Sơ đồ cấp nước đứng: Trục ống PPR chạy trong hộp gen.
- Mặt bằng thoát nước các tầng: Chi tiết độ dốc và hướng thoát ra hố ga công cộng.
- Chi tiết bể tự hoại 3 ngăn: Phải đảm bảo tách biệt nước thải đen (bồn cầu) và nước thải xám như rửa chén, tắm giặt.

Giải pháp thiết kế điện nước đồng bộ từ BP HOUSE – Xây Nhà Trọn Gói
Để giải quyết triệt để vấn đề trên, xu hướng hiện nay là lựa chọn xây nhà trọn gói – mô hình một đơn vị chịu trách nhiệm toàn bộ quá trình từ thiết kế đến thi công và bàn giao. Tại BP House, chúng tôi thấu hiểu nỗi lo của gia chủ về sự thiếu tin cậy ở nhà thầu và các chi phí phát sinh. Khi lựa chọn dịch vụ xây nhà trọn gói, quý khách hàng đảm bảo sẽ nhận được:
- Miễn phí 100% thiết kế điện nước: Khi ký hợp đồng thi công trọn gói, chủ đầu tư sẽ được miễn phí các bộ hồ sơ kiến trúc và điện nước chuyên sâu.
- Cam kết “Không bán thầu”: BP House chịu trách nhiệm và trực tiếp quản lý đội ngũ kỹ sư MEP cùng tổ đội thi công lành nghề, giàu kinh nghiệm.
- Minh bạch chi phí: Không có tình trạng phát sinh do “đổi ý” hay “bản vẽ một đằng thi công một nẻo” – những lỗi thường gặp ở các nhóm thợ nhỏ lẻ.
- Vật liệu đạt chuẩn: Sử dụng ống PPR chống đóng cặn, dây điện đạt chuẩn chống cháy tiêu chuẩn TCVN.
- Chính sách bảo hành 10 năm: Chúng tôi tự tin cam kết bảo hành kết cấu 10 năm và hệ thống kỹ thuật điện nước dài hạn, hỗ trợ bảo trì trọn đời cho gia chủ.
Thiết kế điện nước – khoản đầu tư dài hạn cho sự an tâm của gia chủ
Thiết kế điện nước không phải là hạng mục để “làm cho có” hay một chi phí thừa thãi, mà đây thực sự là một khoản đầu tư cho dài hạn cho sự an toàn và giá trị bền vững của tổ ấm. Đầu tư cho việc thiết kế điện nước được đồng bộ là cách gia chủ tiết kiệm thời gian, chi phí và rủi ro trong tương lai.
Với gia chủ, đầu tư đúng cho thiết kế điện nước đồng bộ chính là đầu tư cho giá trị bền vững, sự thoải mái và an tâm trọn vẹn trong suốt vòng đời của ngôi nhà. Hãy để đội ngũ BP House giúp bạn kiến tạo một không gian sống hiện đại, thông minh và an toàn tuyệt đối.






























